Location: Tanami Drive, Bilingurr, Western Australia
Services: Design Documentation
Principal: WA Builders
Period of Engagement: 2014-2013
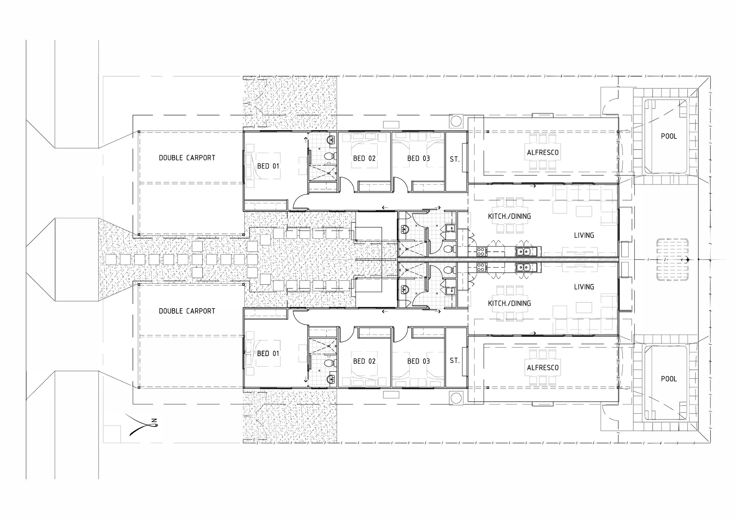
This Duplex residential project was executed as a design and construct delivery for a construction firm. Situated in Broome North, this venture explored the concept of crossflow ventilation in the context of a duplex development. The unique challenge was presented by the orientation of the duplex, which positioned one of the dwellings against the prevailing winds during both wet and dry seasons. The project's primary objective was to strike a balance between crossflow ventilation, privacy, and budget considerations while fitting seamlessly into the suburban streetscape.
